8 (495) 477 47 97
Перезвоните мне

назад

В портфолио

Дизайн интерьера квартиры в Москве №2

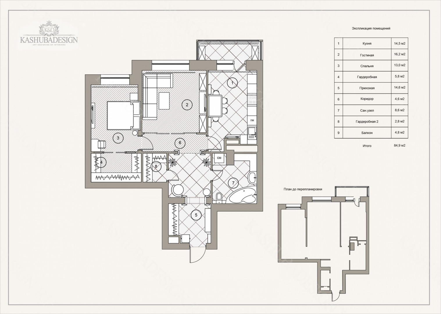
Площадь проекта: 85 м2

Не большая, но емкая московская квартира содержит необходимый набор помещений: прихожую, ванную, два гардеробных отсека, хозяйскую спальню, гостиную, кухню. Кухня объединена с балконом. Стилевые предпочтения заказчиков - совмещение классики и арт - деко.

Отделочные материалы - модульный паркет, керамогранит, стены - декоративная штукатурка, обои, гипсовая лепнина с декорированием. В спальне использована гипсовая потолочная лепнина со светодиодной подсветкой, раздвижные двери в гардеробную со стеклом, на котором пескоструйный рисунок. Нижняя часть стен в спальне отделана деревянными панелями в столярном исполнении. Всегда огромное счастье для дизайнера, сделать порядок в существующем хаосе, находить для заказчика ритмы и рифмы красоты и комфорта. Они заставляют задуматься и о себе, о взглядах на жизнь, об истине и доброте.

К работам

Другие наши работы:

Офис в стиле дизайна интерьера Арт деко
Заказчиками задуман характерный разрыв между скромным фасадом здания и роскошными, красивыми интерьерами офиса. Этот стиль придает офисному помещению атмосферу... читать далее
Офисы
Стилизация интерьера под ампир
Психофизиологические, интеллектуальные и креативные особенности заказчиков всегда отражаются в наших интерьерах. Во взаимоотношениях с заказчиками интерьеров помещений... читать далее
Квартиры
3 Кухня - готика
Все помещения - Кухни
53 Спальня - классика
Все помещения - Спальни

Вам нужна консультация ?

Оставьте свой номер телефона и в ближайшее время мы вам перезвоним для консультации

Нажимая на кнопку "Заказать звонок" вы даете свое согласие на обработку персональных данных